随着计算机应用技术的迅猛发展,采用先进的计算机辅助设计(CAD)技术已成为现代工程设计的主要技术手段,为增强我系广大学生的专业技能,丰富大家的文化生活,激发同学的学习兴趣,培养学生的动手实践能力,增强学风建设,提高竞争意识及未来就业竞争能力,同时我系本学期教学改革的一项举措,经过近2个月的精心筹备,我系于
.jpg)
我系于2013年11月下旬启动CAD比赛程序,学生报名踊跃,全系一年级、二年级各专业班级共有70名同学报名参赛。此次CAD比赛时长90分钟,三名专业教师最终根据“绘图速度、绘图完整性、规范性”等相应技术指标评判分数,通过取平均分来确定本次比赛名次。
.jpg)
希望通过这次比赛,促进建工系建筑CAD课程教学改革,调动广大同学的学习积极性,力求全面提高我系学生绘图水平,增强大家自信心。
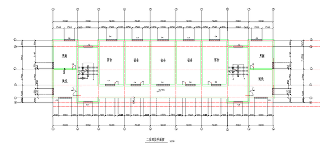
一等奖作品展示:


现将此次比赛结果公布如下:
|
奖项 |
姓名 |
班级 |
|
一等奖 |
任飞祥 |
12造价2 |
|
一等奖 |
孙 博 |
13道桥 |
|
二等奖 |
方 跃 |
13建工2 |
|
二等奖 |
张思超 |
12建工1 |
|
二等奖 |
李 斌 |
12建工2 |
|
二等奖 |
高 栓 |
12建工2 |
|
三等奖 |
张程皓 |
13建工1 |
|
三等奖 |
尹良鑫 |
13道桥 |
|
三等奖 |
翟疏放 |
13建工4 |
|
三等奖 |
蔡晓亮 |
12建工1 |
|
三等奖 |
马卢江 |
13建工3 |
|
三等奖 |
刘剑峰 |
13建工2 |